Kétszintes családi ház, újszerű állapotban
A RAJT Ingatlaniroda kínálatában.
- Celldömölk, családi házas környezetében, teljesen felújított, családi ház eladó.
- Környezete, csendes, nyugodt. pihentető.
- Az ingatlan rendezett, állapota nagyon jó.
- Jellemzője a tágas terek és a modern kivitel.
- Az ingatlan kétszintes,
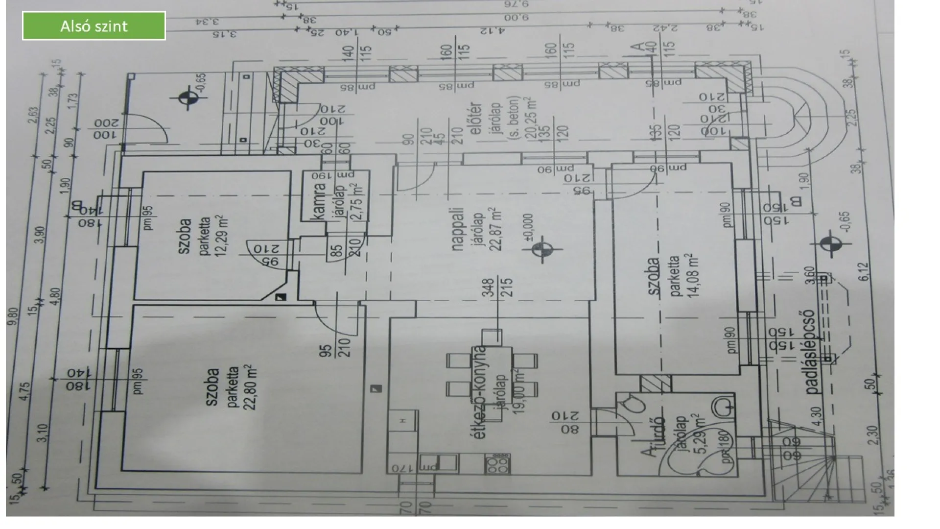
- Alsó szint teljesen kész.
- Felső szinten, teljes szigetelés - alul-oldalt és felül- , valamint fali elektromos kandalló, lett beépítve.
A járóburkolatok és festés hiányzik. Feljárata külön az udvarról történik.
- Új tető, teljes szigeteléssel készült.
- Az ingatlan külső szigetelése is megtörtént, 10 cm –es nikecell lett beépítve.
- Villanyvezetékek cseréje is megtörtént.
- Nyílászárók cseréje is megtörtént.
- Hűtő-fűtő klímák beépítve.
- Kamerarendszer kiépítve
- Fűtés, vízteres kandallóról történik, hőleadók radiátorok.
- Meleg vizet, villanybojler biztosítja
- Telek mérete ideális, udvaron melléképület, műhely található.
- Fekvése, kelet-nyugat irányú és világos
- Az ingatlan eladásakor, az udvar teljesen kiürítve.
Ingatlan vásárlásához szükséges hitel esetében is kérje ajánlatunkat, ami ügyfeleink részére díjmentes. Több bank, több ajánlat, kell a legjobb!
Mindent értékén kezelünk!
Kérem keressen bizalommal.

